Casa indipendente in vendita

Volta Mantovana, Località Ferri - Ferri
€ 78.000
4 locali 4 locali
136 Mq 136 Mq
1 bagno 1 bagno

Casa indipendente in vendita

Volta Mantovana, Località Ferri - Ferri

Descrizione annuncio

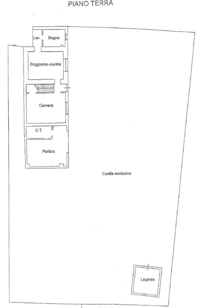
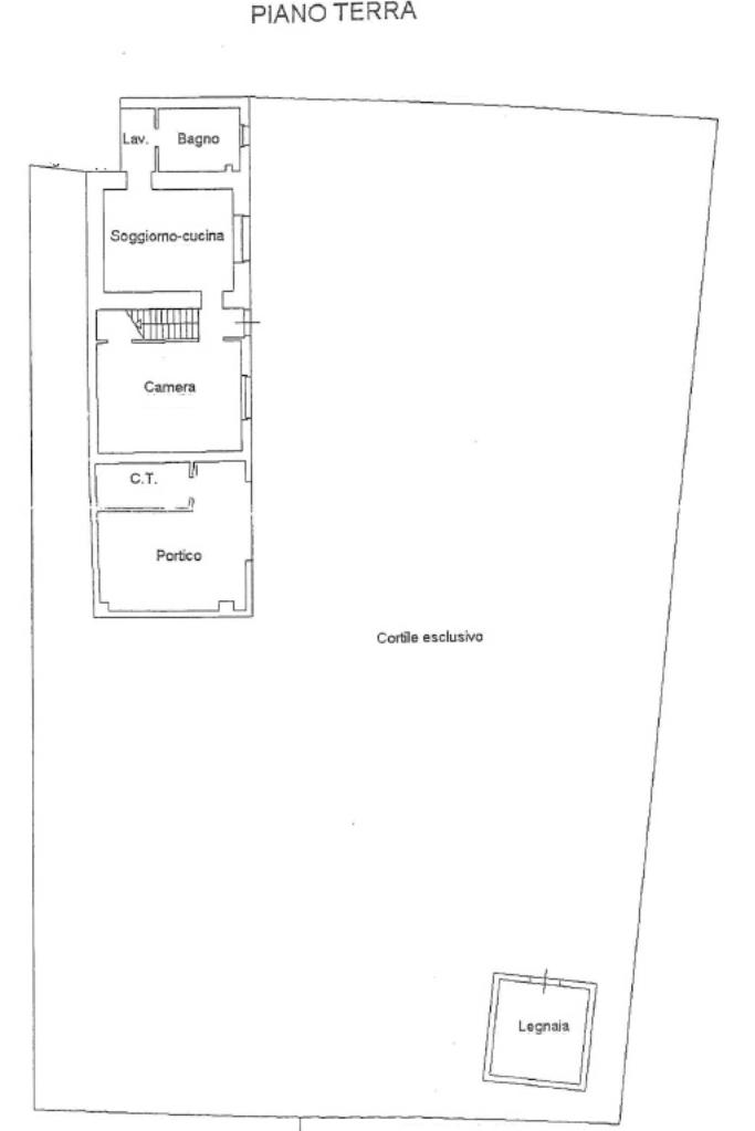
Volta Mantovana – Frazione Ferri

In posizione tranquilla e immersa nel verde, proponiamo casa indipendente da ristrutturare, disposta su due livelli fuori terra, con ampio terreno privato di circa 700 mq e legnaia annessa.

L’immobile, con una superficie complessiva di circa 136 mq, offre ottime potenzialità per chi desidera realizzare un’abitazione su misura, mantenendo il fascino delle case di campagna e godendo della totale indipendenza.

La proprietà si presta sia a un intervento di ristrutturazione completa, sia a una rivisitazione più moderna degli spazi interni ed esterni, grazie anche al generoso lotto di terreno che permette molteplici possibilità di utilizzo.

Soluzione ideale per chi cerca tranquillità, spazio e privacy, senza rinunciare alla vicinanza ai principali servizi offerti dalla zona.

Mostra tutto

Nelle vicinanze

Trasporto pubblico Trasporto pubblico
Trasporto pubblico
600 m
Bar Bar
Chiosco dei Mulini
2,5 Km
Ristoranti Ristoranti
La Fontana
280 m
Agriturismo la Pace
1,0 Km
Agriturismo Bellaria
1,1 Km
Da Rita
1,1 Km
La fattoria sul fiume
2,4 Km
Mostra tutto

Caratteristiche

Rif.:
61146106
Piano:
2 di 2 (Piano su più livelli)
Camere da letto:
3
Arredamento:
Assente
Condizionamento:
Assente
Ascensore:
No
Mostra tutto
Prezzo Prezzo
€ 78.000
Rata mutuo Rata mutuo
€ 368 / mese
Spese annue Spese annue
€ 0
Proponi il tuo prezzoProponi il tuo prezzo

Classe Energetica

G
G
G
G
G
G
G
G
G
EP invernale del fabbricato:
EP estiva del fabbricato:
Anno di costruzione:
1970
Riscaldamento:
Autonomo
Tipo impianto:
A radiatori
Tipo alimentazione:
GPL

Ti interessa visionare l'immobile?

Fissa un appuntamento  Fissa un appuntamento

Richiedi informazioni

Clicca su Leggi per aprire l'informativa
* Questi campi sono obbligatori

Calcola il tuo mutuo

Semplice e senza impegno
Anticipo

( % )
Mutuo

( % )

pochi semplici passi

inserisci i tuoi dati
Questionario completato
Grazie per aver richiesto un appuntamento senza impegno con un nostro Consulente del Credito e Assicurativo.

Hai inserito correttamente tutti i dati necessari e a breve riceverai una e-mail con un link da convalidare per inviare i tuoi dati.
Affiliato
Sirmio Domus Srl
Via Colombare, 119 25019 Sirmione (BS)

Il nostro staff


  • Pedro Pablo Barbieri
    Collaboratore

  • Alessia Bitante
    Coordinatrice

  • Domenico Versace
    Affiliato
Via Colombare, 119 25019 Sirmione (BS)
Zona: Sirmione
Mostra su mappa
Affiliato
Sirmio Domus Srl
Via Colombare, 119 25019 Sirmione (BS)

2026 Tecnocasa Franchising S.p.A. - P. IVA 08365160152 - Via Monte Bianco 60/A 20089 Rozzano (MI). Ogni agenzia ha un proprio titolare ed è autonoma. Privacy policy | Policy utilizzo | Cookie policy